Se vende parcela con proyecto de edificio residencial – Suárez - Málaga capital
Oportunidad de inversión en Suárez - Málaga.
Se vende lote urbano de 1.230m² con proyecto para edificio residencial de 14 viviendas, ideal para promotores e inversores.
Edificio plurifamiliar distribuido en planta baja + 5 alturas, con viviendas de distintas tipologías, todas diseñadas para maximizar la rentabilidad y la demanda del mercado.
Distribución de las viviendas:
Planta Baja (2 viviendas):
Vivienda 1: 3 dormitorios, 2 baños y patio.
Superficie total: 110,40 m²
Vivienda 2: 3 dormitorios, 2 baños.
Superficie total: 107,25 m²
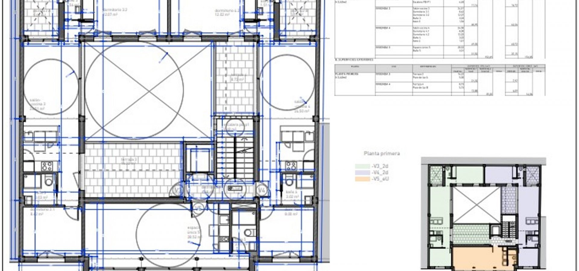
Planta Primera (3 viviendas):
Vivienda 1: Estudio con balcón – 39,03 m²
Vivienda 2: 1 dormitorio con balcón – 61,79 m²
Vivienda 3: 3 dormitorios, 2 baños y balcón – 96,17 m²
Planta Segunda (3 viviendas):
Vivienda 1: Estudio con balcón – 39,03 m²
Vivienda 2: 1 dormitorio con balcón – 47,31 m²
Vivienda 3: 3 dormitorios, 2 baños y balcón – 84,39 m²
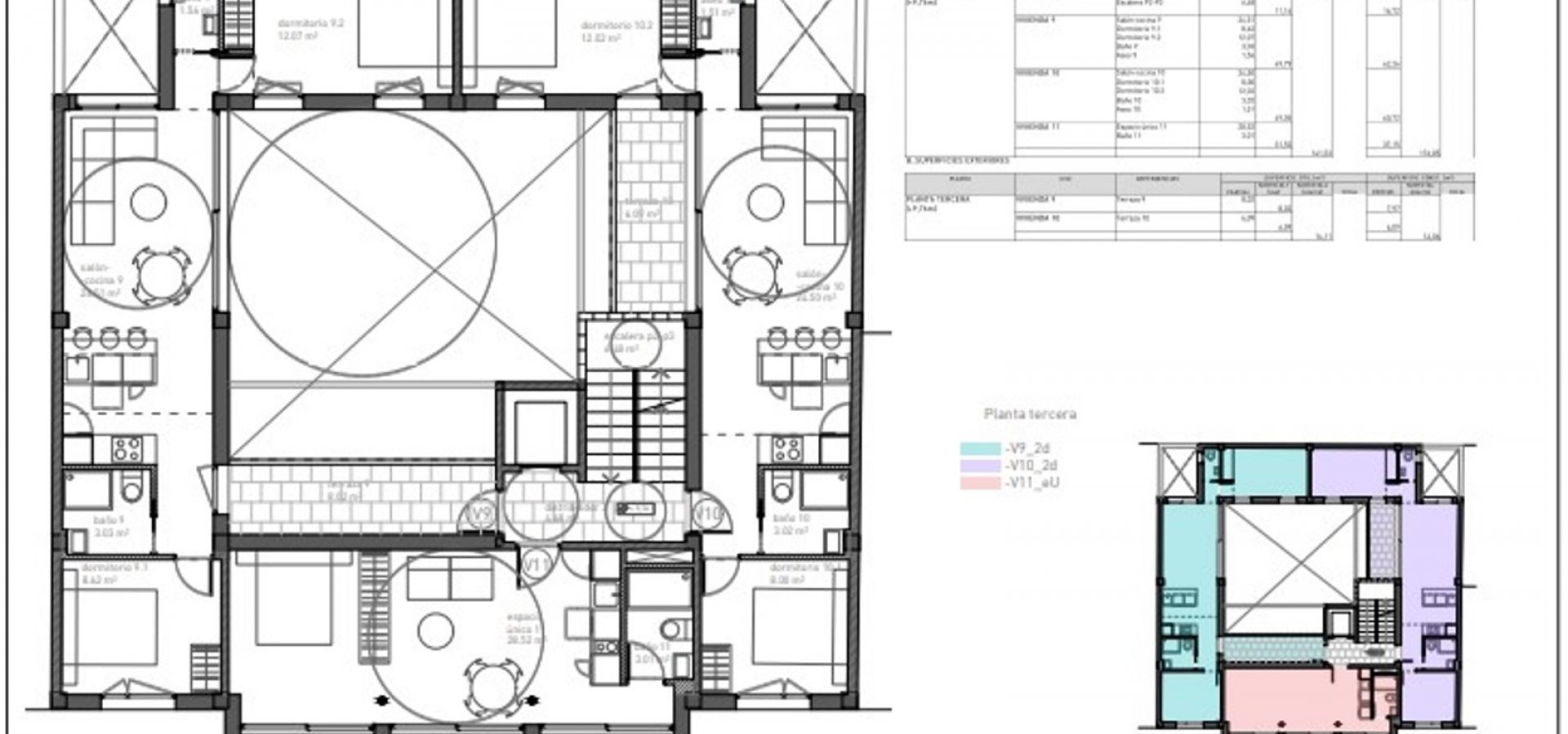
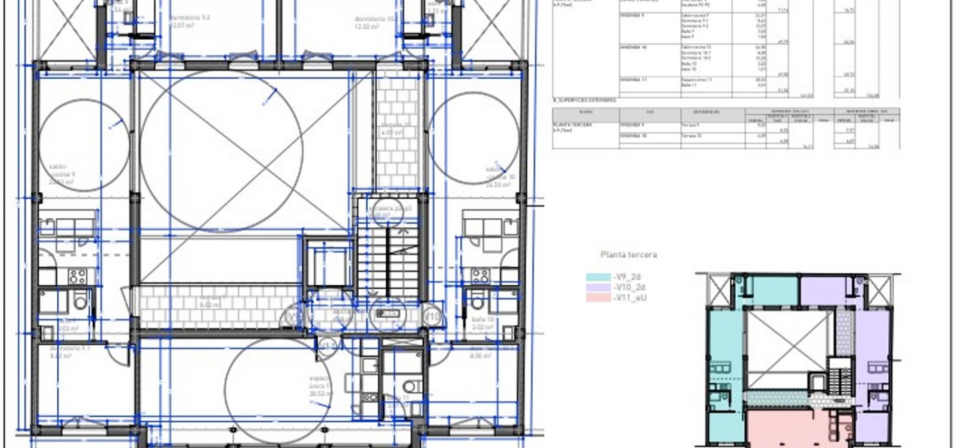
Planta Tercera (3 viviendas):
Vivienda 1: Estudio con balcón – 39,03 m²
Vivienda 2: 1 dormitorio con balcón – 47,31 m²
Vivienda 3: 3 dormitorios, 2 baños y balcón – 84,39 m²
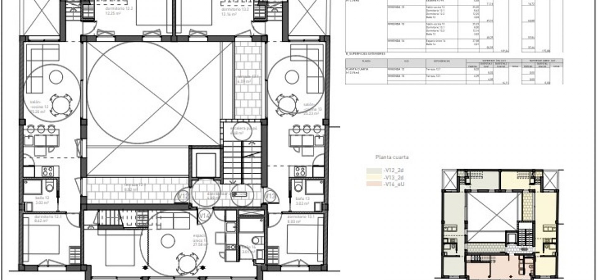
Plantas Cuarta y Quinta (3 viviendas con terrazas privadas):
Vivienda 1: Estudio con balcón + terraza de uso exclusivo
Vivienda: 39,03 m² | Terraza: 49,22 m²
Vivienda 2: 1 dormitorio con balcón + terraza de uso exclusivo
Vivienda: 47,31 m² | Terraza: 42,67 m²
Vivienda 3: 3 dormitorios, 2 baños y balcón + terraza de uso exclusivo
Vivienda: 84,39 m² | Terraza: 79,38 m²
Situado en una zona consolidada de Málaga, con buena comunicación y servicios, lo que garantiza alta demanda residencial y excelente proyección de rentabilidad.
Para más información o documentación del proyecto, no dude en contactar.
De conformidad con el Decreto 218/2005, de 11 de octubre, por el que se aprueba el Reglamento de información al consumidor en la compraventa y arrendamiento de viviendas en Andalucía, se informa al cliente que los gastos notariales, registrales, I.T.P., y demás gastos inherentes a la compraventa o arrendamiento no están incluidos en el precio.
Los honorarios de intermediación están incluidos en el precio.
La información facilitada, incluyendo superficies, precios, condiciones y disponibilidad del inmueble, tiene carácter meramente informativo y no constituye oferta contractual vinculante, pudiendo estar sujeta a modificaciones sin previo aviso, debiendo confirmarse la disponibilidad del inmueble en el momento de la consulta.










